Eladó Téglalakás

Jánossomorja

52 964 400 Ft

Jánossomorján, Ausztria szomszédságában, Mosonmagyaróvártól 15 km távolságra új építésű tárasházban 13 lakás és 2 utcafronti üzlethelyiség eladó!

 

3%-os start hitelre alkalmas, szakaszos finanszírozás mellett, illetékmentes vásárlás keretében megvásárolható! A hitel teljes egészében felhasználható.

 

2 szintes társasházban földszinti kertkapcsolatos, valamint erkélyes emeleti lakások kerülnek kialakításra.

A lakások és üzlethelyiségek emeltszintű szerkezetkész állapotban kerülnek átadásra tervezetten 2026 év végén. Kulcsrakész befejezésre is van lehetőség.

 

-fő falazata 30 cm-es tégla,

-lakáson belüli falak 10 cm-es téglák,

-a lakásokat és közösségi tereket egymástól elválasztó falazat Wienerberger PR 30 AKU-Z 30 cm-es hanggátló falazó blokk,

-korszerű 3 db hőszivattyús rendszer gondoskodik a fűtésről és a melegvízellátásról,

-padlófűtéssel szerelve,

-a nyílászárók 3 rétegű műanyagok

 

Minden lakáshoz és üzlethelyiséghez tartozik 1 db gépkocsibeálló, melynek ára 2.000.000 Ft, ezt kötelező megvásárolni.

 

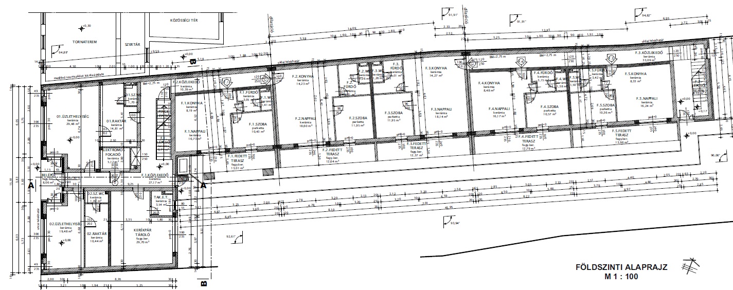
Az adott F2 megnevezésű lakás a földszinten található:

51,25 m2 alapterületű,

térkövezett terasza 12,64 m2,

saját kertje 60 m2

fűtéskész ára: 52.964.400 Ft

 

További részletekért kérem hívjon!
Józsa-Matkovics Dóra

0630/2017-006

Adatok

57 m2
Tégla
Új építésű
Földszint

Elhelyezkedés

network solutions vs ipage